Terrain.org UnSprawl Case Study.

 
 

 

Maps & Plans.

Bradburn Village Site Plan

Interactive Site Plan

Bradburn Village Location Map

 
  

 
    
  
 
     
    
  
 

Bradburn Village in Westminster, Colorado
Bradburn Village in Westminster, Colorado
 
by Petra Spiess                                       [view additional Bradburn Village photos]
 

Overview

Aerial conceptual drawing of the Bradburn Green at Bradburn Village.
  Aerial conceptual drawing of the Bradburn Green at Bradburn Village.
Graphic courtesy Duany Plater-Zyberk & Company.
  

Bradburn Village is a $220 million, 125-acre New Urbanist community located in suburban Westminster, Colorado.  Four distinct neighborhoods are an easy walk from a pedestrian-friendly village core—with shops, restaurants, office space, live/work units, and a mix of a residences interspersed with parks and community centers, adjacent to a regional open space trail system.  Of the more than 300 single-family homes, 42 will be solar-powered, making Bradburn Village host to the largest solar-powered neighborhood in Colorado, according to representatives of McStain Homes.  A total of 865 residential units is expected at buildout.

Though situated close to employment centers and halfway between downtown Denver and Boulder, Bradburn Village draws many who prefer to work from home.  One resident noted in a recent Boulder Daily Camera article that within one block, he knows five neighbors who work at home like himself.  Additionally, he notes, “Bradburn is designed around community.  Everyone introduces themselves.  Everyone’s invested not just financially, but for the quality of life.  We wanted to raise our kids here; there aren’t many places left where the environment is such an important part of life.”

Bradburn Village streetscape.
Usable front porches and a variety of vernacular architecture define Bradburn Village's streetscapes.
Photo courtesy Continuum Partners.
 
  

Community History

Continuum Partners—which is “dedicated to creating ecologically sustainable human habitats of extraordinary character and enduring value,” according to its marketing materials—sought to build a project incorporating the principles of traditional neighborhood design in the greater Denver metropolitan area.  Previously, Continuum’s focus was on smaller urban projects near central Denver, including Union Station, 16 Market Square, and the downtown redevelopment of Lakewood known as Belmar, west of Denver.  For this project, the developer originally looked south, but suburban areas like Highlands Ranch—featured more than a decade ago in National Geographic as the epitome of America’s sprawling suburbs—offered little in the way of innovative land-use opportunities.  Continuum located the current parcel in the northern Denver metropolitan area, where the City of Westminster was also seeking to create a smart growth community. 

The parcel was originally an actively farmed wheat field, bordered on two sides by the city-maintained Dry Creek Open Space, featuring more than forty miles of trails.  Continuum purchased the land in 2000, when it began working with the city to change Westminster’s single-use zoning codes to allow for a New Urbanist development.

Continuum’s first challenge was updating those codes.  “The city knew that it wanted something like this,” says Kevin Foltz, Continuum Partners director of development. “We showed them many projects that town planners Duany Plater-Zyberk & Company had designed.  The city liked the designs, but the existing zoning wouldn’t allow for it.”

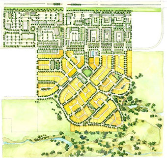
Bradburn Village Site Plan.
  Bradburn Village site plan. Click image for larger view.
Graphic courtesy Continuum Partners.
  

Though some innovative projects and visualization efforts were ongoing in Westminster, the city had no experience with comprehensive mixed-use neighborhoods.  Denver’s suburban areas are typically characterized by car-dependent housing and strip malls, and Westminster was no exception.  In order to better understand Continuum’s New Urbanist proposal—which included design work by Duany Plater-Zyberk and Civitas—several City of Westminster representatives visited one of the nation’s first and most successful New Urban projects: Kentlands in Gaithersburg, Maryland. 

Over the next year, Continuum worked with the city to modify zoning for the parcel that would allow for higher-density mixed uses.  Construction then began in 2001 with a promising start, but a combination of the effects of September 11, 2001, and the collapse of the high-tech bubble significantly slowed the region’s economy and Bradburn Village construction.  “Everything was moving well, but Sept 11th changed that,” says Foltz.

Continuum had the opportunity to sell the bulk of the remaining lots to a large production builder that likely would not stay true to the nontraditional design of the project.  Despite the economic pressure, however, Continuum remained.  “We have taken huge hits in interest, but we think it would have been a devastating blow both to sustainability and to the project’s overall vision if we sold part of the neighborhood,” Foltz says.   

Retail street in the Village Core.
Retail street in the Village Core.
Photo by Petra Spiess.
 
  

The Neighborhoods

The design for Bradburn Village was created by Duany Plater-Zyberk and Civitas and consists for four neighborhoods ranging from high-density urban to low-density suburban, each with its own park:

Village Core

Bisected by Main Street, the Village Core fronts 120th Avenue, the primary access into the project.  Designed around “the look and feel of a small town ‘Main Street’ where residents can walk from their homes to shop, eat, and work,” according to marketing materials, the Village Core, at buildout, will offer nearly 200,000 square feet of retail, restaurant, and office space and 9,000 square feet of restaurant out-parcels.  A number of businesses have already located along Main Street, including cafes, salons, a coffee shop, a tavern, a variety of restaurants, and a bank.

The Village Core also features a large plaza and Main Street square, a community center with pool, a church, multistory rowhouse apartments and live/work units, single-family townhomes, and Cherrington Park, named after Linda Cherrington, an original member of the Westminster Historical Society and one of the leading ladies in the city’s early education system.

Two areas of offices further define the Village Core.  The Main Street Offices occupy the second and third floors above Main Street’s shops and restaurants, ranging from 1,000 to 15,000 square feet.  And the Rowhouse Offices are two-story buildings designed for professional uses such as physicians, attorneys, and design firms. Additionally, larger-footprint retail will be added to to the west end of the commercial district, and construction both on a mixed-use building (retail below, condominiums above) and on an event center that will host wedding receptions, office meetings, and corporate events will begin this year.

Bradburn Village church and preschool.
  The church at the Village Core, with Bradburn Village's preschool in the foreground.
Photo courtesy My Neighborhood Insider.
  

DeSpain Park

At the core of the DeSpain Park neighborhood is DeSpain Park, named after the first permanent settler in Westminster, Pleasant DeSpain, who in 1870 built a home on 160 acres at what is now 72nd Avenue and Lowell Boulevard.  As other settlers arrived, the area became known as DeSpain Junction.  The neighborhood is bounded to the north by the Village Core, to the west by Bradburn Green, and to the east by Dry Creek Open Space.  It is comprised of single-family homes.

Mayham Park

The Mayham Park neighborhood is named for Henry T. Mayham, who in 1890 convinced the Denver Presbytery to build a Presbyterian University on land that he owned.  The school was incorporated as Westminster University of Colorado and classes began in 1908.  The large red sandstone building still stands on Westminster’s Crown Point, and is now the Belleview College and Preparatory School.  In addition to the park, the neighborhood features single-family homes west of the Bradburn Green and south of the Village Core.

Commercial and live/work architecture in Bradburn Village.
Commercial and live/work architecture in Bradburn Village.
Photo by Petra Spiess.
 
  

Madison Park

Madison Park neighborhood is the largest and least dense, featuring larger lots for production and custom homes that range in price from $400,000 to over $1 million.  It is bounded on the north by Bradburn Green and the two other predominantly single-family neighborhoods and on its other edges by the large community park, the community gardens and apple orchard, and the Dry Creek Open Space.  The neighborhood is named after the Madison Orchard, home to apple and cherry orchards through the early 1920s.

Green Homes, Green Neighborhood

The homes at Bradburn Village are predominantly modeled after three vernacular Front Plains styles: Denver Prairie, Craftsman, and Farmhouse.  Similar to other traditional neighborhood developments, Bradburn Village features front porches, alley-loaded garages, wide sidewalks set off streets, a grid-based system of narrow streets, and parks.  The project includes a combination of production and custom builders, with custom homes often sitting adjacent to production homes.  Ensuring a variety of architecture can be a challenge for production-built homes, so Continuum instituted an “anti-monotony” criteria that dictates where particular home styles may be built and mandates change of exterior elevation features such as brick columns, wrapped porches, and colors on adjacent homes.  In addition to the vernacular styles, residential architecture incorporates Victorian, Italianate, Colonial, and modern designs.

Bright colors and vernacular architecture define the homes at Bradburn Village.
  Bright colors and vernacular architecture define the homes at Bradburn Village.
Photo courtesy My Neighborhood Insider.
  

The homes themselves feature high-speed wiring and other innovative and sustainable architecture features, such as carriage homes above garages and active solar photovoltaic panels with net-metering that will allow outfitted homes to sell electricity back to the utility during the day.  Additionally, all are “built green”—homebuilders participate in the Colorado Built Green program, which in addition to energy- and water-efficient features for homes, often means buyers can gain access to reduced mortgage rates.  In general, the Colorado Built Green program strives for:

  • Better home energy efficiency
  • Healthier indoor air
  • Reduced water usage
  • Preserving natural resources in construction and the homes themselves
  • Incorporating durable materials into the homes

Bradburn Village features at least fifteen distinct homebuilders, including builders such as New Town Builders who have homes in other New Urbanist projects, like Stapleton.  Lots for single-family homes generally range from 4,000 to 10,000 square feet.  All homes are also within a five- to ten-minute walk from the Village Core.

Bradburn Village park and homes.
Bradburn Village park and homes.
Photo by Petra Spiess.
 
  

As a community, Bradburn Village distinguishes itself from other Denver-area neotraditional projects because of its size. “The one thing that I always come back to is that the scale of Bradburn is so unique,” says Foltz.  “To be able to pull off this mix of uses and architectural diversity—we really have four distinct neighborhoods—plus the parks, connection to open space, and a commercial area, is impressive.  And to do that all with 800 units instead of two- or three-thousand.”

“You don’t get lost in Bradburn,” he concludes.  John Koliopoulos, a resident who moved to Bradburn Village from a nearby, high-end subdivision, agrees.  “It was right at so many levels,” he says, speaking both of his new cottage home in the Madison Park neighborhood, built by the New Providence Company, and the community in general.  “It is a walking community, quaint and hospitable, with garages in the back.  It’s open and airy, with the blend of residential and commercial, open space, a lot of families and children, shared space on the park.  It’s not a cookie-cutter house, and yet there’s an architectural cohesiveness to the neighborhood.”

Bradburn Village Craftsman homeBradburn Village Home Styles

Craftsman

Craftsman homes seem quintessentially American, but it was the British Arts and Crafts movement, with its emphasis on craft and natural materials, that inspired the design.  Gustav Stickley’s magazine, The Craftsman, helped spread the word in the U.S. in the early 1900s.  The Craftsman homes feature rustic, exposed rafters, ridge beams, and window frames.  Other signature elements include shallow-pitched roofs, deeply overhanging eaves, and tapered columns.

  

Bradburn Village Denver Prairie homeDenver Prairie

Take Frank Lloyd Wright’s Prairie home and mix it with the two-bay Denver Four-Square and you get Denver Prairie: a taller, boxier version of the great 20th century architect’s breakthrough style.  Wright’s low, flat designs were meant to reflect the Midwestern prairie.  Denver Prairies, popular in the region during the 1910s and 1920s, tend to have wide windows and shallow hip roofs.  Sometimes they feature leaded glass, flat roofs, and tapered columns, but they always feel solid and stable.

  

  

 

Bradburn Village Farmhouse homeFarmhouse

This architectural style embodies early 20th century rural American practicality and simplicity.  Farmhouse’s unpretentious design allows it to stand on its own, or assume an occasional flourish without seeming overdone.  Maybe that means supplementing a home with picturesque, smaller additions.  Or adding slightly arched windows.  Either way, there’s a timeless charm to this plain, vertically-oriented style, with its steeply pitched roof, symmetrical gables, and repetitive array of tall windows.

 

Source: Continuum Partners, via Bradburn Village website.

A Social Community

Party on a park—a regular occurance at Bradburn Village.
Party on a park—a regular occurrence at Bradburn Village.
Photo courtesy My Neighborhood Insider.
 
  

There’s been much debate about the “social engineering” aspects of traditional neighborhood design.  In Bradburn Village, though, there’s little doubt by the developers or residents that amenities and town design—usable front porches, pocket parks, wide sidewalks, short setbacks, smaller home lots, and interesting places to walk to—work to bring neighbors together. 

Bradburn Village brims with both planned and spontaneous community events.  Every Friday evening during the summer, for example, residents gather at a neighborhood park for a “park party,” where adults socialize while children play.  A stroll around Bradburn Village on a pleasant evening finds scads of people out walking dogs, patronizing neighborhood businesses, talking with neighbors on their porches while neighborhood kids ride bikes up and down the streets.  Because the community’s design encourages people to be outside in shared public spaces instead of their own, secluded backyards, cut off from their neighbors, residents in Bradburn Village generally know each other and interact frequently.

 

For more information, view additional Bradburn Village photos, or visit the Bradburn Village website at www.BradburnVillage.com.

  
 
 

Petra Spiess is a Westminster-based freelance writer who cut both her gas bill and carbon footprint by moving from a typical sprawl subdivision to Bradburn Village.
  :   Next   

  

 
Just the Facts.
 
 

Bradburn Village
Westminster, Colorado

  • 125-acre mixed-use community comprised of 4 neighborhoods
  • Located in a northwest suburb of Denver, Colorado
  • $220 million project
  • 865 residential units at buildout, including single-family homes, townhomes, condominiums, apartments, and live/work units
  • Residential lots are approximately 66% built out
  • Homes are built to Colorado Green Built standards, including some active solar
  • Village Core will offer nearly 200,000 square feet of retail, restaurant, and office space and 9,000 square feet of restaurant out-parcels
  • Contains 9 parks and 2 community centers, plus community gardens and an orchard
  • Adjacent to city-maintained Dry Creek Open Space, with its own extensive set of trails
  • Adjacent K-12 charter school is within easy walking distance, and a space in the project itself is set aside for a future elementary school
  • Designed by Duany Plater-Zyberk & Company; Civitas
  • Developed by Continuum Partners
 
     

  

Resources.

Bradburn Village

Bradburn Village on My Neighborhood Insider

Built Green Colorado

City of Westminster, Colorado

Civitas, Inc.

Continuum Partners

Duany Plater-Zyberk & Company

  

References.

Bradburn Village Website: BradburnVillage.com

Built Green Colorado Website: BuiltGreen.org

Collins, Thom, "McStain Homes at Bradburn Village: Solar-electric homes raise the bar on energy efficiency," Boulder Daily Camera. June 1, 2007.

Editors, "Bradburn Village, Westminster," My Neighborhood Insider. Accessed June 23, 2008.

Finmore, Judy, "Bradburn in Westminster: New Urbanism for the Suburbs," Boulder Daily Camera. May 4, 2007.

Peters, Brianna, "Largest solar-powered neighborhood in Colorado!" YourHub.com > Westminster. April 5, 2007.

Spiess, Petra, "Won't You Be My Drinking Buddy Neighbor?" Fermentarium. September 2, 2007.

 

    
  
 
   
    
  
 
Home : Terrain.org. Terrain.org: A Journal of the Built & Natural Environments.